SOLINAS SERRA ARQUITECTS
descrizione
Memory and Abstraction
Project Concept

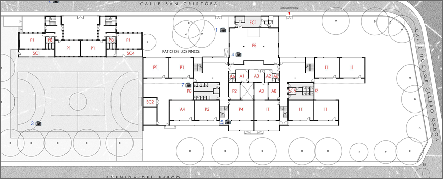
The  School of  San Julian  is located in the town center of Marmolejo, has two old building of the years 70th and 60th built in a rectangular plot with an area of 8,741 m2 . The works consisted in building a new Gymnasium and adapting the old centre to the new schools regulations. The main remodelling is done in the old brick building. Although formally it is a single building, the problem was that in terms of operation and organization functions works as two.  In the main building, classrooms are very well arranged, oriented toward the south also have cross ventilation. The terraces doesn´t work only as connection but also as sun protection.

The internal organization of this building has been completely changed, needed news stairs, lift-elevator, new wc… and needed to change the old distribution because it had the problem that only on the ground floor functioned as a single unit while the top floor functioned as two separate areas. It also changes the main entrance of the Centre, is disposed now under the shadow of three large pine trees that provides protection at the entrance of the students. 

The new gym is located at the southeast corner of the lot and it´s connecting to the main building through a new pergola.  Special care has been taken in the ventilation inside the gym getting it through the chimney effect induced in the double layer of the large windows. The technical characteristics that assure adequate durability at minimal cost of conservation are considered for the choice of materials and installations. Every space has direct natural light and ventilation. Every space avoids long paths and ensures visual integration of all interior spaces of the building. 

 

 
Before and After
Project Photos
 
 
 
 
 
 
 
 
 
 
 
 
 
 
 
 
 
 
 
 
About
Project Credits
Architects
Simone Solinas, Gabriel Verd Gallego
Collaborators

Santiago Bermejo Oroz (Structures), Rafael Rodríguez Lora (IDD Consultores), Eduardo Vázquez
(Technical Architect), Federico Farina (Architect) , Gabriel Verd (Photographer)

Genesis
Competition: 2008 Project: 2010 Realisation: 2011
Costs

Built Surface: 3.421 m2
Cost: 1.859.945 EURO

Promoter

ISE Andalucía (Ente Andaluz de Infraestructuras y Servicios Educativos) Junta de Andalucía (Consejería de Educación)

 
 
             
realized
work in progress
books
magazines